Plan
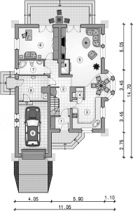
Prizemlje
- ulaz 2,95 m²
- hodnik 9,1 m²
- kuhinja 16,75 m²
- ostava 1,2 m²
- soba 25,95 m²
- soba 15,35 m²
- kupatilo 4,45 m²
- kotlovnica 8,45 m²
- garaža 18,15 m²
Ukupno: 102,35 m²
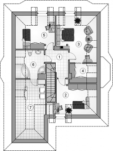
Potkrovlje
- hodnik + stepenice 6,1 m²
- soba 11 m²
- soba 14,05 m²
- garderoba 4,25 m²
- soba 10,65 m²
- kupatilo 6,8 m²
- pomoćna prostorija 10,3 m²
Ukupno: 63,15 m²
Cijena
- oko 75 000 EUR
Pogledajte galeriju:








